От правильного выбора вида планировки квартиры зависит, насколько удобной она окажется для хозяев дома. В статье мы поговорим о том, какое расположение помещений считается наиболее удачным, сколько комнат требуется для комфортного проживания с детьми. Расскажем о плюсах и минусах разных типов жилья и на что обратить внимание при его покупке.
Рассмотрим основные типы квартир, представленных на рынке жилья, и подскажем, как выбрать подходящий для себя вариант.
Инна Крескиян
Дизайнер интерьеров
При выборе планировки квартиры всегда учитывайте ваш образ жизни и сценарии поведения. Например, если вы любите собирать гостей, вам потребуется пространство для их приема — рассматривайте жилье с просторной гостиной или кухней-столовой. Если у вас дети разных полов и возрастов, точно стоит подумать о раздельных комнатах. Для младших членов семьи выбирайте большее пространство, где они смогут играть, учиться и приглашать ровесников. Важно, чтобы их комната находилась подальше от лестничных площадок, лифтовых шахт и кухни — так дети смогут отдыхать и высыпаться. Ориентируйте по вашим потребностям. Если вам необходимо много мест для хранения, отличным вариантом станут планировки с гардеробной или нишами под шкафы.
Студия
Такая планировка предполагает компактное жилое пространство без внутренних перегородок, за исключением отдельного санузла.
Плюсы:
студию можно зонировать под собственные нужды, разработать уникальный дизайн обстановки;
такие квартиры обычно дешевле, а небольшая их площадь позволяет экономить на отоплении, а также быстрее делать уборку;
из-за отсутствия стен студии выглядят визуально более просторными, чем есть на самом деле.
Минусы:
в студии невозможно добиться полной приватности;
запахи готовки и звуки работающей техники с кухни распространяются по всему помещению;
в свободном пространстве бывает сложно гармонично разместить системы хранения и крупную мебель.
Кому подходит: это оптимальный вариант для молодой пары или одного хозяина. А вот семьям с детьми, особенно, если кто-то из родителей работает на дому, такие квартирки плохо подходят.
Чтобы учесть все нюансы, предварительно продумайте планировку квартиры-студии с экспертом или сделайте проект в специальной программе.
Читайте также
Удачная планировка маленькой квартиры за 5 шагов Вы узнаете, как превратить помещение площадью в 30-45 м² в стильное и эргономичное пространство и какие приемы вам в этом помогут.
Студия — один из самых популярных вариантов квартир в качестве стартового жилья, объекта под инвестиции или как будущее наследие для детей (на вырост, так сказать). Помещения порядка 29-35 кв.м предпочитают молодые пары, так как пространство легко спланировать и зонировать для двоих. Еще такой формат выбирают те, кто живет один, ведь на данной площади получится разместить полноценное место для сна, приготовления пищи, приема гостей и для хранения вещей. Также этот вариант пользуется спросом в качестве арендного жилья у студентов.
Классическая планировка
Этот вид планировки квартир предполагает отдельную кухню и вход в остальные помещения из коридора. Их количество бывает разным – от одной до четырех.
Плюсы:
для каждого члена семьи есть обособленное пространство;
запахи и звуки работающей техники из изолированной кухни не распространяются по квартире;
четкое разделение на зоны облегчает планирование помещений.
Минусы:
потеря полезной площади за счет коридора;
сложность при создании больших, открытых пространств, характерных для современных интерьеров;
визуальная теснота из-за большого количества стен.
Кому подходит: семьям с детьми, в том числе если один из родителей работает удаленно, пожилым парам, любящим принимать гостей.
Классические планировки бывают нескольких типов:
Линейная («трамвайчик»). Комнаты располагаются одна за другой. Минус таких квартир в том, что в них сложно создать приватную обстановку в проходных зонах, а плюс — отсутствует прихожая с большим количеством «мертвых» участков.
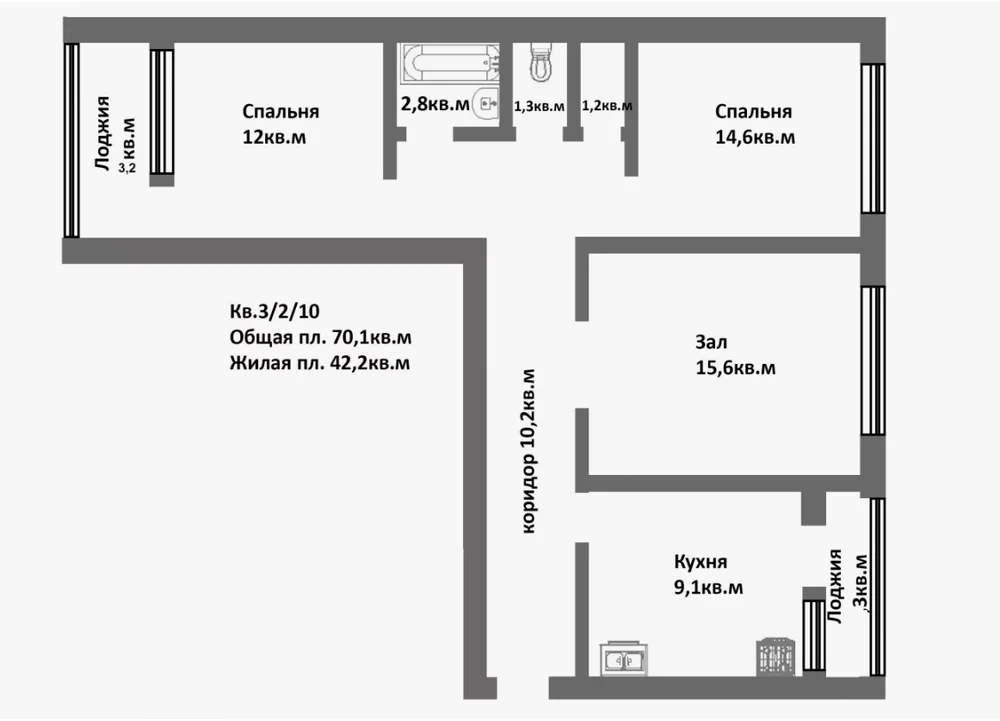
Двусторонняя («распашонка»). Комнаты размещены по обе стороны длинного коридора. Такая планировка считается самой удачной, все помещения изолированы, что позволяет без труда создать отдельные пространства для каждого члена семьи. Окна, выходящие на две стороны дома, обеспечивают хорошее проветривание. Разная освещенность, в зависимости от стороны света, дает возможность разработать особый световой сценарий для каждой комнаты, подчеркнув зонирование. Часто в таких квартирах есть два балкона или лоджии – на них хорошо организовать кабинет, место отдыха, системы хранения. Минусом «распашонок» является нефункциональный коридор, который сложно эффективно использовать.
Коридорная («гребенка»). Все комнаты расположены на одной стороне длинного коридора. Плюс таких квартир в том, что комнаты изолированы, но поскольку все окна выходят на одну сторону дома, их бывает сложно проветривать. Во всех помещениях будет одинаковая наполненность дневным светом — его может быть недостаточно либо слишком много (например, в спальне на солнечной стороне). Прихожую с несколькими дверями неудобно использовать для хранения вещей. Однако стена между комнатами и прихожей как правило ненесущая, что позволяет сделать пространство более удобным с помощью продуманной перепланировки жилища.
Улучшенная планировка, по чешскому проекту («чешка»). От стандартных они отличаются более просторной кухней, санузлом и холлом.
Инна Крескиян
Дизайнер интерьеров
Классическая планировка остается популярной благодаря возможности перепроектировать пространство. Чаще всего такие квартиры выбирают уже семьи с детьми, так как здесь можно создать уединенные комнаты для всех домочадцев. Также, если сделать перепланировку, получится организовать просторную кухню-гостиную для посиделок с гостями. Чтобы узкие коридоры не занимали полезную площадь, продумывают варианты перепланировки со встроенными шкафами или установкой распашных стеклянных дверей, которые будут давать естественный свет.
Европейская планировка
Этот тип планировки квартир предполагает наличие объединенной кухни-гостиной и одной или нескольких изолированных спален. В зависимости от количества отдельных комнат такое жилье называют евродвушками (1 спальня), евротрешками (2 спальни) или еврочетырешками (3 спальни).
Плюсы:
отсутствие длинного нефункционального коридора;
меньшее число перегородок создают впечатление простора, наполненности квартиры воздухом и светом;
объединенная кухня-гостиная позволяет реализовать смелые дизайнерские решения при оформлении помещения (например, поставить барную стойку или смонтировать кухонный остров на границе зон);
изолированная комната дает возможность сделать полноценную приватную спальню либо детскую.
Минусы:
запахи готовки и звуки бытовой техники, которые из кухонной зоны распространяются в гостиную;
необходимость поддержания порядка в части комнаты для готовки, чтобы она не портила общий вид;
уменьшенное количество жилой площади, поскольку спальни часто меньше, чем при стандартной планировке, а в кухне-гостиной бывает трудно разместить всю технику и мебель.
Кому подойдут: евро-квартиры подойдут молодым парам или семьям с одним ребенком. Они понравятся и хозяйкам, которые много времени проводят на кухне. Объединенная комната позволит заниматься готовкой и одновременно общаться с близкими.
Свободная планировка
Свободная планировка предполагает приобретение квартиры без внутренних перегородок.
Плюсы:
владельцы могут разработать схему расположения нежилых и жилых помещений под собственные нужды;
жилье проще адаптировать под изменения в составе семьи;
комнаты можно сделать любой формы или размера, выбрать оригинальный дизайн.
Минусы:
«привязка» кухни и санузла к «мокрым» зонам и стоякам водоснабжения и водоотведения не позволяет перенести их в другую часть квартиры;
открытая планировка предполагает значительные финансовые и временные затраты на ремонт — придется возводить перегородки, делать разводку коммуникаций, чистовую отделку;
возведение любых стен (даже некапитальных) требует согласования в БТИ, Госжилинспекции и других организациях, а это достаточно сложный процесс.
Кому подойдет: такой тип жилья не подойдет тем, кто хочет въехать в дом и сразу жить в нем, поскольку на работы и согласования уйдет достаточно много времени. Если вы готовы к этому, а также серьезным тратам на ремонт или хотите сделать нестандартную планировку, покупайте вариант без внутренних перегородок. На этапе приобретения эти квартиры стоят дешевле и вам не придется сносить стены, чтобы полностью реализовать свои дизайнерские задумки.
Также надо предусмотреть расходы на разработку проекта. Это можно сделать самостоятельно или обратиться к дизайнеру. Специалист, помимо помощи в создании интерьера, подскажет, как сэкономить на ремонте квартиры без ущерба для безопасности и надежности работы инженерных сетей.
Инна Крескиян
Дизайнер интерьеров
Свободную планировку можно очень часто встретить в предложениях у застройщиков, но есть пара сложностей, о которых не всегда предупреждают, а их важно знать. Во-первых, нужно понимать: квартира взята в ипотеку или нет. Если в ипотеку, возможность вносить изменения в планировку пространства необходимо уточнять у вашего менеджера в банке — не все дают согласие. Также при проведении перепроектирования, вам необходимо будет зарегистрировать все изменения, а для этого важно знать нормы и правила, плюс пройти процедуру узаконивания до начала ремонтных работ. Они займут от 1 до нескольких месяцев и, соответственно, срок переезда в квартиру будет немного затягиваться.
Комфорт- и бизнес-класс
Квартиры комфорт-класса отличаются большей площадью, изолированными комнатами. Часто в таких домах есть гардеробные, широкие балконы и кладовые, которые добавляют удобства.
Плюсы:
высокие потолки (2,8-3,1 м);
кухня от 8 до 12 м²;
они выглядят просторными, наполненными воздухом и светом.
Минусы:
высокая цена;
большое количество несущих стен и колонн, которые нельзя трогать при перепланировке — это существенно ограничивает людей, желающих перестроить пространство, сделать его более удобным.
Если вам нравятся эксклюзивные интерьеры, присмотритесь к типу планировки бизнес-класса. Современные застройщики предлагают просторное жилье данного вида с мастер-спальнями (с отдельным туалетом, гардеробной), террасами, панорамным остеклением.
Плюсы:
отсутствие перегородок;
большая площадь;
уникальные дизайнерские решения;
несколько санузлов;
кухня площадью больше 12 м²;
расположено в престижных районах населенных пунктов.
Минусы:
цена — такое жилье значительно дороже квартир типовой планировки;
серьезные затраты на ремонт.
Кому подойдет: дома комфорт- и бизнес-классов подойдут людям с высоким доходом, которые хотят получить эксклюзивный интерьер и максимум удобства, роскоши.
Гид: как выбрать вид планировки квартиры
Покупая жилье, изучите, какие бывают планировки квартир, и выберите подходящий для себя вариант, исходя из следующих моментов:
Состав семьи. Важно обеспечить каждому человеку личное пространство. Поэтому, если есть дети, присмотритесь к вариантам с изолированными комнатами – так будет проще зонировать квартиру, выделить место для спален и детских. Хорошо, если в доме окажутся просторный холл или кладовая. Пожилым людям желательно выбрать вариант без длинного коридора, но с большой кухней.
Образ жизни. Разделите квартиру на функциональные зоны, которые вам действительно нужны, а не выделяйте их под влиянием моды. Например, если не занимаетесь спортом, не тратьте полезную площадь на уголок с тренажерами. Лучше организуйте зону для рисования, чтения, вечернего отдыха либо оставьте больше пространства. Тем, кто работает дома, надо позаботиться об эргономичном рабочем месте.
Технические характеристики. Если вы решили делать индивидуальную планировку в типовом жилье, изучите схему расположения несущих стен – их целостность нарушать запрещено, поэтому не все решения получится воплотить в жизнь. Уточните, где проходят инженерные коммуникации. От этого зависит, получится ли перенести ванну или раковину в удобное для вас место, а также где они будут находиться при свободной планировке квартиры.
Форма комнат. Наиболее удобны для расстановки мебели квадратные и прямоугольные помещения. Они смотрятся гармоничными, легче делятся на функциональные зоны. А вот красиво и удобно обставить узкие, скругленные или нестандартные комнаты гораздо сложнее. Они чаще встречаются в современных домах с замысловатыми фасадами, а также в старых зданиях с эркерами и подобными архитектурными элементами. Вытянутые помещения-пеналы характерны для малогабаритных хрущевок.
Бюджет. Когда он ограничен, стоит выбрать студию или одно-, двухкомнатную квартиру небольшой площади. Если вы располагаете достаточными средствами на покупку и ремонт жилья, присмотритесь к просторным удобным вариантам (класса комфорт, бизнес или улучшенной планировки).
Предварительно разработайте проект. Это поможет не ошибиться с выбором планировки. Например, можно воспользоваться сервисом RoomPlan 3D. Он работает онлайн, а его интуитивно понятный интерфейс на русском языке позволит быстро освоить софт даже людям, которые раньше никогда не занимались проектированием. Более 1200 моделей мебели, декора, а также 1900+ отделочных материалов в каталоге помогут выбрать нужные образцы под любой стиль. Вы заранее сможете оценить, как будет выглядеть новое жилье и насколько оно удобно для вас.
Программа создает реалистичную визуализацию, поэтому вы сможете понять, как правильно расставить предметы обстановки, достаточно ли места останется для ходьбы, «примерьте» разные варианты оформления дома. Так вы будете четко представлять, какая квартира нужна именно вам для комфортного проживания, сколько в ней должно быть комнат, мест для систем хранения и функциональных зон.
Создайте идеальную планировку с RoomPlan 3D
В приложении вы найдете все необходимое для визуализации планируемой обстановки, сможете оценить ее эстетику и эргономичность, при необходимости внести изменения в проект.
Чтобы выбрать удачную планировку, обращайте внимание на следующие моменты:
Если любите готовить, остановитесь на варианте с просторной кухонной зоной или продумайте ее аккуратное объединение с гостиной.
Избегайте квартир с длинными коридорами – они нефункциональны, скрадывают много полезной площади (в некоторых случаях до 20%).
Посмотрите, есть ли в квартире глубокие ниши или кладовые — за счет них можно расширять комнаты либо использовать для организации удобных систем хранения.
Посмотрите, где квартира расположена в доме — лучше, если она находится подальше от лифта и лестницы (так в комнатах будет меньше шума).
Когда в квартире есть лоджии или балконы, их можно будет превратить в домашние мини-кабинеты, уголки для релакса или другие функциональные зоны.
Количество и расположение окон — от этого зависит наполненность помещений естественным светом, например, восточная сторона хороша для тех, кто любит просыпаться с первыми лучами солнца, а окна на западной стороне позволят дольше не включать лампы в послеобеденное время.
Посмотрите, где находятся общие и личные пространства — лучше, когда гостиная, кухня, столовая располагаются ближе ко входу, а спальни, детские, санузлы — подальше.
Перед покупкой жилья изучите план этажа, оцените, где размещены двери соседних квартир. Их слишком близкое расположение друг к другу может создавать неудобство при входе и выходе из квартиры. Этаж чаще выбирают исходя из личных предпочтений. Считается, что пожилым людям удобно жить пониже, а вверху меньше шума и лучше вид из окна.
Подводим итоги
Перед покупкой квартиры изучите, какие бывают планировки и выберите оптимальный для себя вариант:
Если живете один или вдвоем, достаточно будет студии либо однокомнатной квартиры, а вот семьям с детьми лучше присмотреться к «двушкам» и «трешкам» с изолированными спальнями, чтобы у каждого ребенка было личное пространство.
Любителям готовить потребуется большая кухня, где получится уместить много техники и утвари.
Убедитесь, что в доме достаточно места для организации систем хранения, чтобы разложить все вещи.
Обратите внимание на расположение несущих стен — их нельзя убирать, делать в них проемы, что ограничивает реализацию идей по зонированию.
Уточните, где проходят инженерные коммуникации — от этого зависит, где будет стоять сантехника.
Продумайте, какие функциональные области вам нужны, насколько эргономично они разместятся в доме.
Чтобы учесть все детали и избежать ошибок, перед покупкой квартиры сделайте проект в программе RoomPlan 3D. В приложении можно работать бесплатно, оно не требует установки на компьютер, подходит начинающим дизайнерам и даже простым пользователям.
Продумайте интерьер квартиры вместе с RoomPlan 3D
В приложении вы сможете разработать планировку по реальным размерам квартиры, выбрать места расположения и толщину перегородок, а также продумать расстановку мебели, сантехники и бытовых приборов.
Основные минусы свободной планировки – высокие расходы на ремонт, который придется начинать с черновой отделки и строительства стен. Процесс согласования всех видов работ требует много времени и сил. Фантазию владельцев по обустройству жилья ограничивает расположение «мокрых» зон и инженерных коммуникаций.
Какие планировки считаются самыми ликвидными при продаже?
Наибольшей популярностью на рынке пользуются небольшие квартирки площадью до 50 м² (студии, евродвушки, классические однокомнатные). Плюсом будет наличие лоджии или балкона, а также расположение жилья не на первом и последнем этаже.
Какие планировки квартир устарели?
Устаревшими сегодня считаются так называемые «хрущевки» и «брежневки» с маленькими кухнями и прихожими, нефункциональными длинными коридорами и проходными комнатами.
Какая планировка лучше: линейная или угловая?
Выбор между этими двумя планировками зависит от личных предпочтений. Каждая из них имеет плюсы и минусы. В угловой окна чаще выходят на разные стороны дома, поэтому там проще обеспечить качественное проветривание, они бывают более светлыми. Линейные квартиры некоторым владельцам кажутся более теплыми и уютными, в них проще планировать расстановку мебели и зонирование. Однако, если все окна выходят на север, в таких домах бывает довольно темно, приходится чаще использовать искусственное освещение.
Какую выбрать планировку квартиры для семьи с двумя детьми?
Семье с двумя детьми надо выбрать квартиру с изолированными комнатами для каждого ребенка и родителей, а также раздельным санузлом. Оптимальным вариантом может стать «евротрешка» с кухней-гостиной и двумя отдельными спальнями. Подойдет и классическая «распашонка», в которой комнаты разделены коридором, что улучшает звукоизоляцию и повышает приватность пространств.